Grand Retreat
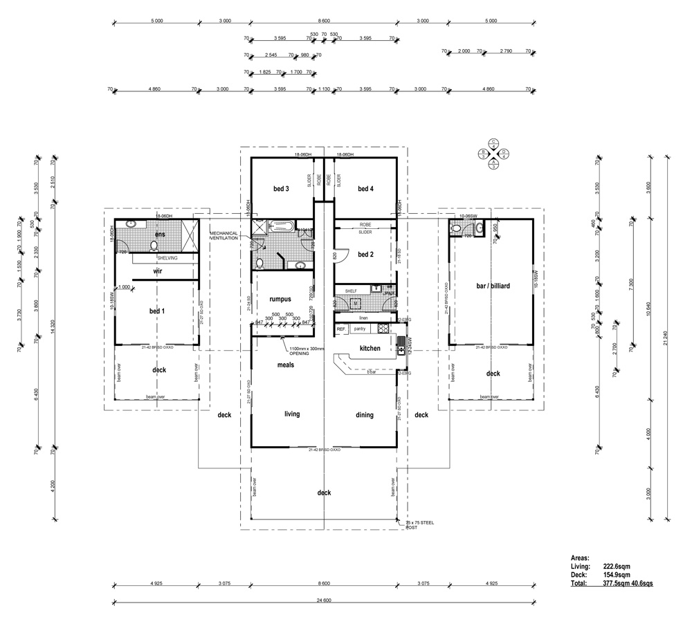
For a large growing family that likes to entertain. This home has it all with four bedrooms and a rumpus, large open plan living and separate games room leading on to the large under cover outdoor area.
Total Area:
377sqm
Footprint:
24.6m x 21.2m
Level:
Single Level
Bedrooms:
4
Bathrooms:
2.5
Car Spaces:
0
From:
$267,712



