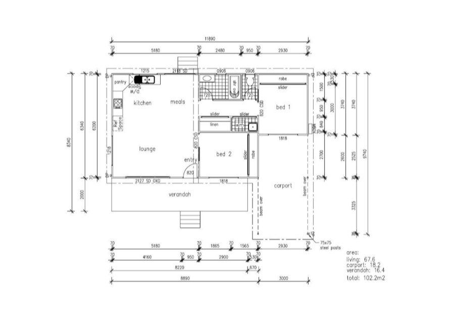
Hideaway
Compact two-bedroom home with plenty of storage. Open plan leading onto a large veranda.
Total Area:
102.2sqm
Footprint:
11.8m x 9.7m
Level:
Single Level
Bedrooms:
2
Bathrooms:
1
Car Spaces:
1
From:
$84,876
Compact two-bedroom home with plenty of storage. Open plan leading onto a large veranda.
PO Box 635 Sandgate, QLD 4017